Serving Kelowna and the Okanagan Valley

Homes | Suites | Multi-Units

Professional, permit-ready construction drawings in Kelowna for custom homes, secondary suites, and multi-unit developments, delivered with a focus on efficiency and code compliance.

Overview

Designing a home or development in Kelowna comes with unique challenges — zoning regulations, evolving housing policies, and construction costs all play a major role.

At Kelowna Home Design, we specialize in creating practical, buildable designs that align with local requirements while maximizing your property’s potential. Whether you're a homeowner, investor, or builder, we provide clear, efficient plans that simplify the path from concept to construction.

Our Services

We offer comprehensive design and drafting services in Kelowna and across the Okanagan, delivering permit-ready construction drawings and expert guidance through the building permit process. Our portfolio spans custom homes, renovations, secondary suites, carriage homes, and multi-unit residential developments. With a focus on efficiency, code compliance, and thoughtful design, we help homeowners, developers, and investors maximize project potential and achieve successful outcomes.

  • We offer comprehensive zoning bylaw and building code assessments, providing clear guidance on development potential, permitted uses, density, and site constraints. Our in-depth understanding of local regulations allows us to identify opportunities within the bylaws and develop strategic solutions that help you achieve your project goals efficiently and compliantly.

  • Multi-Unit Residential Design in Kelowna

    With increasing demand for housing in Kelowna, small-scale multi-unit developments such as duplexes, triplexes, fourplexes, Sixplexes, and Eightplexes are becoming a key opportunity for homeowners and investors.

    We design efficient, buildable multi-unit projects that align with zoning regulations and development guidelines. Whether you're looking to maximize density on your property or explore an infill development, we provide designs that balance livability, cost, and compliance.

  • We design custom homes across a wide range of architectural styles, from modern and contemporary to traditional and transitional, creating refined, permit-ready solutions that balance aesthetics, functionality, and code compliance.

  • Home Renovation & Addition Design

    Whether you're expanding your home or reconfiguring your space, we create renovation and addition designs that integrate seamlessly with your existing structure.

    We focus on improving functionality, maximizing space, and ensuring the design aligns with your goals while remaining practical to build.

  • Secondary Suite Design In Kelowna

    Secondary suites and carriage homes are among the most effective ways to increase property value and generate rental income in Kelowna and throughout the Okanagan.

  • Create space for what matters with thoughtfully designed garages, workshops, and accessory buildings. Our Kelowna-based design services focus on practical layouts and seamless integration with your home and lifestyle.

  • We create custom, functional, and visually stunning deck designs that enhance your home and maximize your outdoor space. From modern layouts to detailed construction-ready plans, our designs are built for durability, comfort, and seamless integration with your property. Perfect for homeowners and builders looking for high-quality custom deck design in Kelowna.

  • We provide comprehensive drafting services in Kelowna and throughout the Okanagan to support projects at any stage, including construction drawings, permit drawings, as-built drawings, and design documentation to support residential and multi-family developments.

  • Elevate your projects with premium 3D visualization services in Kelowna. We deliver photorealistic architectural renderings, interior and exterior 3D visuals, and animations that help you showcase, market, and sell with confidence.

Our Process “A Simple Approach”

  • Step 1 - Consultation

    We review your goals, property conditions, budget, and timelines to define the project scope, identify opportunities and constraints, and establish a clear foundation for the design and development process.

    Architectural plans for a house, a 3D house rendering, a color palette on a tablet, and design tools on a bright white desk in an office with large windows.
  • Step 2 - Zoning Assessment

    We analyze zoning designations, permitted uses, floor area ratios (FAR), setbacks, building heights, parking requirements, and overlay restrictions.

    Zoning Assessment
  • Step 3 - Conceptual Design

    We develop initial layouts and design options that align with your vision, exploring functional, aesthetic, and site-specific considerations.

    Floor plans of a townhouse showing four levels: basement, first level, second level, and third level. Each level's layout includes interior rooms and staircases, with black arrows indicating entry points. The plans are detailed black-and-white architectural drawings with labels for each level.
  • Step 4 - Design Development

    The plans incorporate construction notes, assembly details, drawings, sections, and renderings, and are developed to a level appropriate for coordination and distribution to engineering subconsultants, including structural, mechanical (HVAC), and roof truss and floor joist designers.

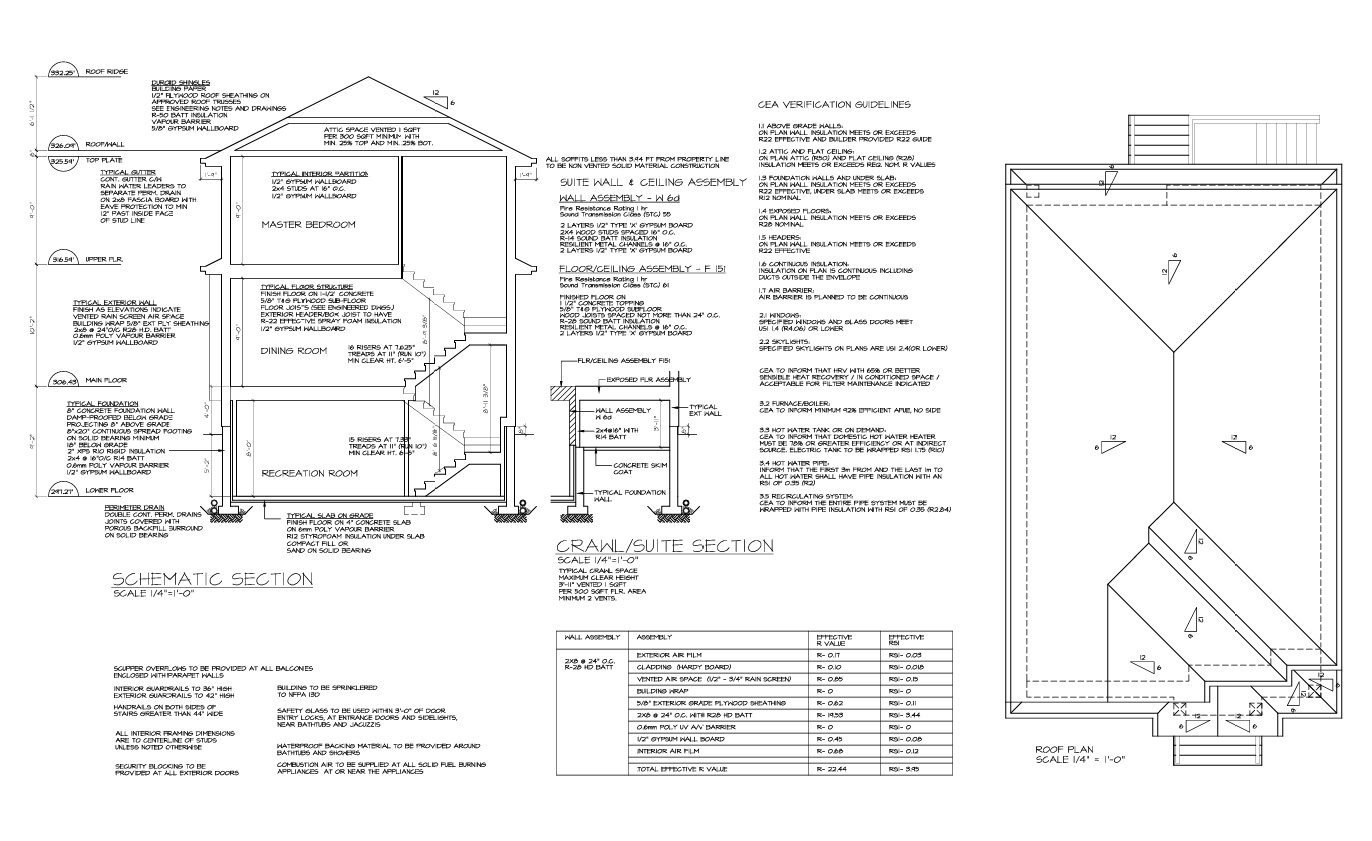
    Detailed architectural blueprint of a residential building including sections for the schematic, crawl space, roof plan, and ceiling assembly, with various measurements and construction notes.
  • Step 5 - Permit Drawings

    We deliver to the client complete, permit-ready drawings used for building permit applications and construction.

    Architectural blueprint or drawing with a rolled permit labeled 'PERMIT DRAWINGS' placed on top, showing a modern building design with trees and a person with a bicycle.

Our Selected Projects

Why choose us

  • Designing in Kelowna requires a clear understanding of zoning, permitting, and development guidelines. We bring local expertise that helps your project move smoothly through approval and into construction.

  • We focus on solutions that are functional, efficient, and aligned with your budget.

  • We prioritize communication, timelines, and accountability, ensuring a smooth and dependable experience from start to finish.

  • We specialize in secondary suites, carriage homes, and small-scale multi-unit projects — aligning with the growing demand for housing in Kelowna.

  • From concept to permit-ready drawings, we guide you through each step with clarity and responsiveness so you always know what’s next.

Start your project with Kelowna Home Design